Gewerbeimmobilie > Bürohaus
Zu Vermieten

50 m² BÜRO- / GEWERBEFLÄCHE MIT BLICK ZUR ALBRECHTSBURG

01662 Meißen
300 €

SR-729
1977
50 m²
1
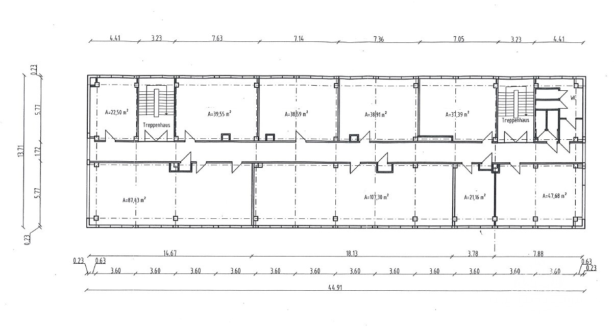
  • Zur Vermietung steht eine vielseitig nutzbare Büro- /Gewerbefläche mit einer Größe von ca. 50 m² in attraktiver Lage von Meißen. Die Fläche befindet sich in der 3. Etage und eignet sich ideal für Büro-, Praxis-, Dienstleistungs- oder Agenturnutzungen.

    Auf der Gesamten Etage stehen insgesamt 12 Büros auf ca. 570 m² zur Verfügung, die über einen zentralen Flur miteinander verbunden sind. Dadurch entsteht eine klare, funktionale Struktur mit guter Orientierung und flexiblen Nutzungsmöglichkeiten.

    Ein besonderer Vorteil dieser Immobilie ist die flexible Anmietung.
    Es besteht keine Verpflichtung zur Anmietung der gesamten Fläche. Einzelne Büros oder Raumkombinationen können je nach Bedarf separat angemietet werden. Damit eignet sich das Objekt sowohl für Einzelunternehmer als auch für größere Unternehmen oder Gemeinschaftsnutzungen.

    Direkt am Objekt stehen bis zu 30 Pkw-Stellplätze zur Verfügung, was sowohl für Mitarbeiter als auch für Kunden einen hohen Komfort bietet.

    Die Flächen werden zu folgenden Mietkonditionen vermietet:
    – Nettokaltmiete: 6,00 € / m²
    – Nebenkosten: 2,00 € / m²
    – Alle Priese zzgl. gesetzlicher Umsatzsteuer

    Diese Gewerbefläche bietet eine ideale Kombination aus Flexibilität, Funktionalität und attraktiver Lage. Die variable Raumaufteilung, vorhandene Anschlüsse und der teilweise historische Ausblick machen sie zu einer interessanten Option für unterschiedlichste gewerbliche Konzepte.
  • Flächen

    • Bürofläche: 50 m²
    • Gesamtfläche: 50 m²
    • Zimmer insgesamt: 1

    Zustand & Erschließung

    • Baujahr: 1977

    Sonstiges

    Wir haben Ihr Interesse geweckt!
    Zögern Sie nicht lange und nehmen Sie Kontakt mit uns auf.
    Sie erreichen uns telefonisch unter der 015228399480.
  • * Gesamtfläche: ca. 570 m² *
    * Aufteilung in 12 separat nutzbare Räume *
    * Zentrale Erschließung über einen durchgehenden Gang *
    * Getrennte Damen- und Herren-Sanitäreinrichtungen auf der Etage *
    * Teilweise Wasser- und Abwasseranschlüsse in den Räumen, ideal z. B. für eine Teeküche *
    * Teilweise Blick auf die Albrechtsburg Meißen, was den Räumen ein besonderes Ambiente verleiht *
    * Flexible Vermietung *

    • Primärenergieträger: Gas
    • Energieausweis-Gebäudeart: Nichtwohngebäude
    Energieausweis nicht verfügbar/erforderlich oder in Vorbereitung
    0
    100
    200
    300
    400
    500
    600
    700
    800
    900
    ≥1000
     
  • Die Gewerbefläche befindet sich in der Niederauer Straße 24, 01662 Meißen. Der Standort überzeugt durch seine gute Erreichbarkeit sowie die Nähe zum Stadtzentrum. Öffentliche Verkehrsmittel und wichtige Verkehrsanbindungen sind gut erreichbar.

    • Kaltmiete: 300 €
    • monatl. Betriebs-/Nebenkosten: 100 €
    • Warmmiete: 400 €
    • Gesamtkosten: 400 €

Dein Ansprechpartner bei uns

Paul Graupner

Sicher!  

 

Consent Management Platform von Real Cookie Banner