Charmantes, möbliertes Reihenmittelhaus in ruhiger Lage von Weinböhla
-
Dieses gepflegte und möblierte Reihenmittelhaus im beliebten Weinböhla bietet auf ca. 144 m² Wohnfläche ein behagliches Zuhause mit viel Raum zum Wohlfühlen. Das Haus aus dem Jahr 1996 überzeugt durch eine solide Bauweise, eine funktionale Raumaufteilung und helle, freundliche Zimmer.
Im Erdgeschoss befindet sich der großzügige Wohn- und Essbereich mit Zugang zur Terrasse und in den sonnigen Garten. Eine separate Küche sowie ein Gäste-WC ergänzen diese Ebene.
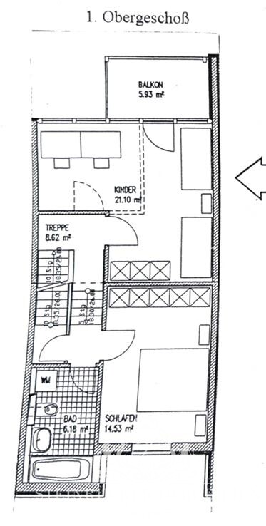
Das Obergeschoss bietet zwei gut geschnittene Schlafzimmer sowie ein Tageslichtbad mit Badewanne und Dusche.
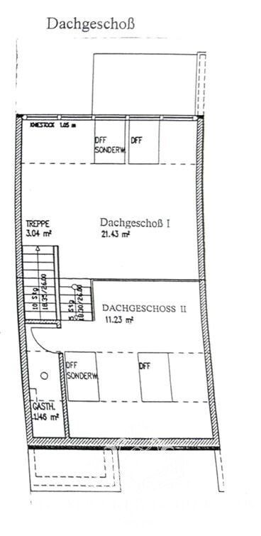
Im Dachgeschoss stehen zwei weitere Zimmer zur Verfügung, die sich hervorragend als Arbeits-, Gäste- oder Kinderzimmer eignen. Vom oberen Geschoss führt ein Zugang auf den Balkon mit Blick ins Grüne.
Das Haus ist derzeit leerstehend, jedoch komplett möbliert – ideal für Eigennutzer, Kapitalanleger oder als Übergangslösung zur sofortigen Nutzung. -
Flächen
- Wohnfläche: 143 m²
- Grundstücksfläche: 144 m²
- Nutzfläche: 168 m²
- Zimmer insgesamt: 5
- Schlafzimmer: 1
- Badezimmer: 1
- Separate WCs: 1
- Etagen: 3
- Stellplätze: 1
- Carport-Stellplätze: 1
- Balkone: 1
- Terrassen: 1
Zustand & Erschließung
- Baujahr: 1996
- Zustand: gepflegt
- Keller: voll unterkellert
Sonstiges
Das Haus ist leerstehend und kann nach Vereinbarung sofort bezogen werden.
Ein Energieausweis ist in Vorbereitung.- Immobilie ist verfügbar ab: sofort
-
Sonnige Terrasse mit Gartenanteil
Balkon im Obergeschoss
5 Zimmer auf drei Ebenen
Tageslichtbad mit Badewanne und Dusche
Gäste-WC im Erdgeschoss
Gaszentralheizung (2018 erneuert)
Holzfenster, doppelt verglast
Betondachsteine, naturfarben (Original aus 1996)
Fliesen-, Teppich- und Vinylböden
Einbauküche (optional übernehmbar)
Keller mit Hauswirtschafts- und Abstellraum
Carport-Stellplatz direkt am Haus
Ruhige, familienfreundliche Wohnlage
Leerstehend, möbliert – sofort verfügbar
- Heizungsart: Zentralheizung
- Befeuerung: Gas
-
- Primärenergieträger: Gas
Energieeffizienzdaten (noch) nicht verfügbar050100150200250300350≥400 -
Das Haus liegt in einer ruhigen Wohngegend in Weinböhla, einer beliebten Gemeinde zwischen Meißen und Dresden.
Einkaufsmöglichkeiten, Schulen, Kindergärten sowie Ärzte und Freizeitangebote befinden sich in der Nähe.Die Verkehrsanbindung ist hervorragend: Über die S-Bahn, Buslinien sowie die B101 und A4 sind Dresden und Meißen in kurzer Zeit erreichbar.
Die naturnahe Umgebung mit Weinbergen, Wäldern und Radwegen bietet zudem zahlreiche Erholungsmöglichkeiten.- Distanz zur Autobahn: 10,0 km
- Distanz zum Kindergarten: 1,0 km
- Distanz zur Grundschule: 1,0 km
- Distanz zur Realschule: 1,0 km
- Distanz zum Gymnasium: 1,0 km
- Distanz zum Zentrum: 1,0 km
-
- Kaufpreis: 295.000 €
- Käuferprovision: Käuferprovision 3,57% (inkl.MwSt.) des beurkundeten Kaufpreises.
Dein Ansprechpartner bei uns





















