Wohnimmobilie > Einfamilienhaus
Zu Verkaufen

DENKMALGESCHÜTZTES FACHWERKHAUS IM HERZEN DER PORTZELLANSTADT

01662 Meißen
180.000 €

SR-556
100 m²
170 m²
7
  • Sie suchen etwas ganz Besonderes?
    Dieses wunderschöne, denkmalgeschützte Fachwerkhaus in unmittelbarer Nähe der historischen Albrechtsburg bietet Ihnen ein einmaliges Wohnambiente in der renommierten Porzellanstadt Meißen, im Herzen von Sachsen.

    Das traumhafte Fachwerkhaus verfügt über eine Wohnfläche von ca. 100 m², die sich harmonisch auf drei Etagen verteilt. Die sieben gemütlichen Zimmer laden zum Verweilen ein, während zwei modernisierte Badezimmer zusätzlichen Komfort bieten – ideal zum Entspannen nach einem langen Tag.

    Der Außenbereich ist ein weiteres Highlight: Ein idyllischer Terrassenbereich, sowie ein Hof auf einer Grundstücksfläche von ca. 170 m² bieten ausreichend Platz für Freizeit, Erholung und kreative Gestaltungsmöglichkeiten. Auf dem Grundstück befindet sich zudem eine Garage, die nicht nur Platz für Ihr Fahrzeug bieten kann, sondern zusammen mit einem weiteren Schuppen und 2 urigen Sandstein – Gewölbekellern viel Stauraum für Ihre Bedürfnisse bereithält.

    Liebevoll renoviert – Modern und historisch im Einklang.
    2025 wurden Teile des Innenbereichs renoviert, sodass Sie sich auf ein frisch renoviertes Zuhause freuen können.

    Das Haus wird durch eine Gas-Zentralheizung beheizt, die Ihnen auch in den kälteren Monaten ein behagliches Wohnklima garantiert. Zusätzlich können Sie durch den eingebauten Kamin, eine gemütliche warme Wohnatmosphäre schaffen.

    Ob mit oder ohne Kinder, Platz gibt es genug. Da muss man nur noch einziehen.

    Zögern Sie nicht, uns für weitere Informationen oder die Vereinbarung eines Besichtigungstermins zu kontaktieren!
  • Flächen

    • Wohnfläche: 100 m²
    • Grundstücksfläche: 170 m²
    • Nutzfläche: 200 m²
    • Zimmer insgesamt: 7
    • Schlafzimmer: 4
    • Badezimmer: 2
    • Terrassen: 1

    Zustand & Erschließung

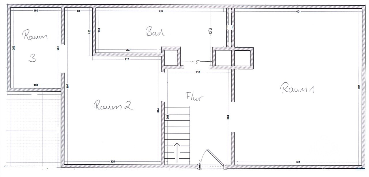
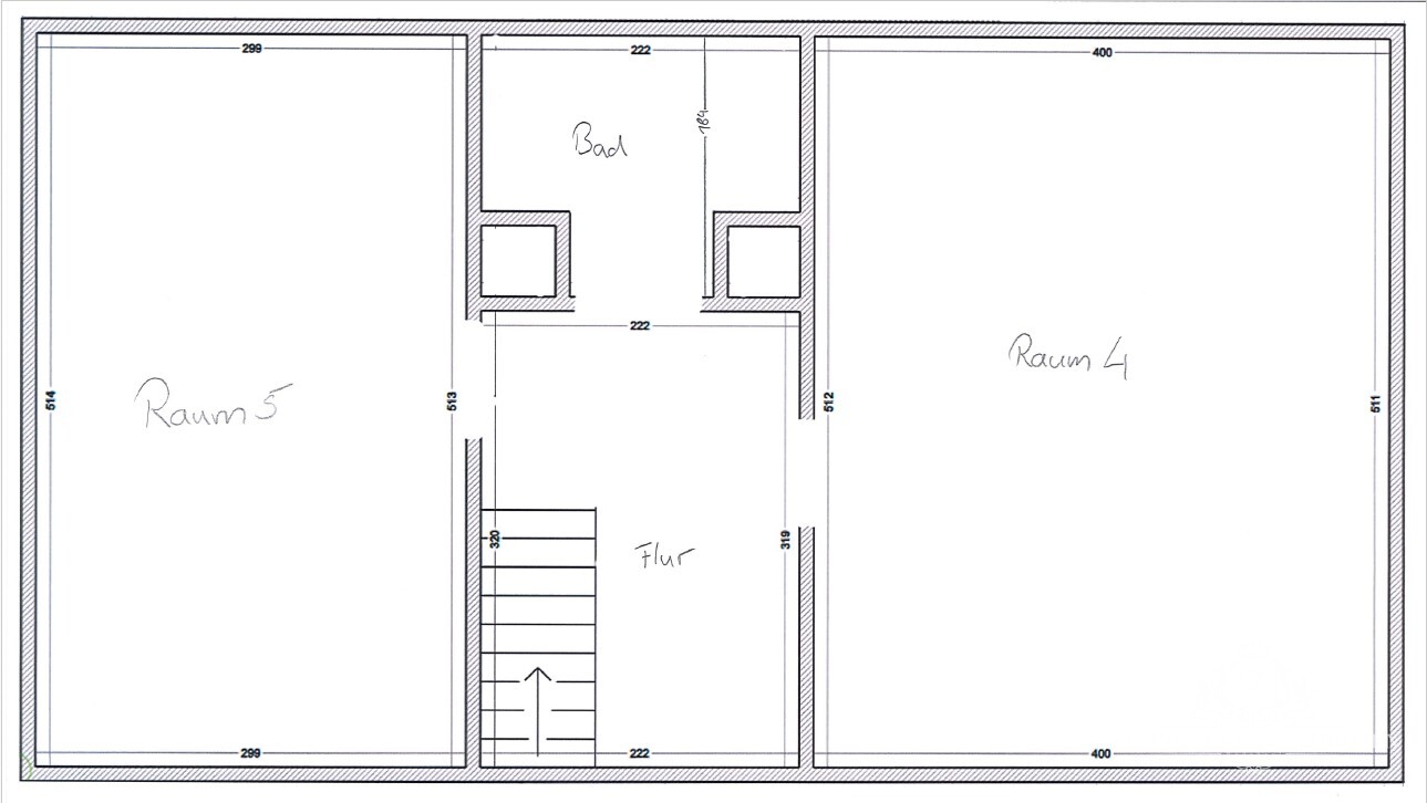
    • Keller: voll unterkellert

    Sonstiges

    Wir haben Ihr Interesse geweckt!
    Zögern Sie nicht lange und nehmen Sie Kontakt mit uns auf.
    Sie erreichen uns telefonisch unter der 015228399480.
    • Denkmalschutz: ja
    • Heizungsart: Zentralheizung
    • Befeuerung: Gas
    • Kamin
    • Primärenergieträger: Gas
    Energieeffizienzdaten (noch) nicht verfügbar
     
    0
    50
    100
    150
    200
    250
    300
    350
    ≥400
     
  • Die Wiege von Sachsen, bis heute wird die Porzellanstadt Meißen dieser historischen Bezeichnung zweifelslos gerecht.

    Mit Meißen verbindet man eine mehr als 1000-jährige Geschichte, das Weinanbaugebiet entlang des Elbtals zählt zu den kleinsten Deutschlands.
    Als Stadt liegt Meißen auf einer Fläche von 30,92 km² zwischen der sächsischen Landeshauptstadt Dresden und Leipzig.
    Der Stadtkern, in dem sich eine Vielzahl von Geschäften befindet, besteht fast ausschließlich aus denkmalgeschützten Häusern.

    Eine Vielzahl gastronomischer Einrichtungen und einheimischer Winzer laden zum Verweilen ein. Durch die kulturellen Einrichtungen bietet die Stadt Meißen eine facettenreiche Abwechslung.

    • Kaufpreis: 180.000 €
    • Käuferprovision: 3,57

Dein Ansprechpartner bei uns

Paul Graupner

Sicher!  

 

Consent Management Platform von Real Cookie Banner