Wohnimmobilie > Einfamilienhaus
Zu Verkaufen
PRIVAT-KERNSANIERTES EINFAMILIENHAUS IN ZENRALER LAGE MIT GARTEN UND BLICK AUF DAS SCHLOSS
345.000 €
SR-679
2025
150 m²
200 m²
5
-
Zum Verkauf steht eine echte Rarität im Herzen von Großenhain.
Zentral gelegen am Markt, direkt neben dem Schloss in Großenhain, befindet sich dieses Hammergrundstück mit einem komplett sanierten und sofort bezugsfertigen, luxuriösen Traumhaus.
Das im Jahr 1800 erbaute Mehrfamilienhaus wurde komplett entkernt und mit einem lokalen Architekten und Statiker auf eine Wohneinheit mit einer Wohnfläche von ca. 150m² und ca. 80 m² Nebennutzfläche ausgebaut.
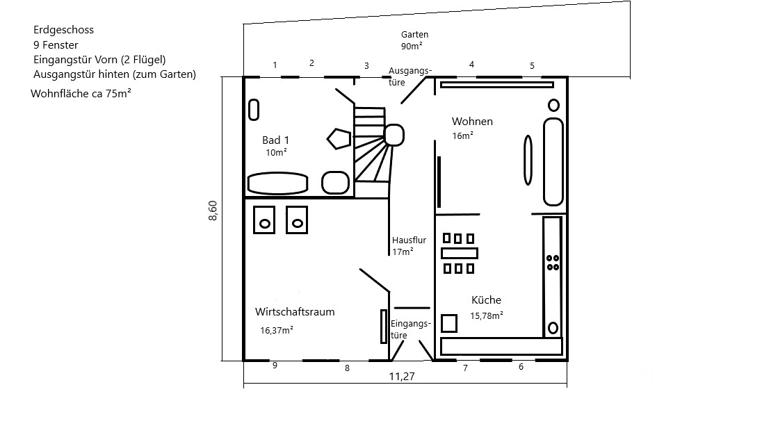
Das Haus ist ab Mitte 2025 Kernsaniert, sofort bewohnbar und wird Im EG mit einem Wirtschaftsraum, einem Wohn-Esszimmer mit direkten Zugang in die Gartenoase und einem Badezimmer mit Badewanne und Dusche ausgestattet (Grundrisse anbei)
Im 1. OG entsteht ein weiteres Tageslichtbadezimmer mit Badewanne und Dusche.
4 weitere, helle Räumlichkeiten werden hier ausgebaut und können als Schlaf, Gäste, Arbeits-und Kinderzimmer fungieren.
Gasanschluss, sowie Wasser und Abwasser liegen im gesamten Objekt an (Installation 2024) Eine Gartenoase im hinteren Bereich lädt idyllisch zum Verweilen ein.
Glasfaseranschluss ab 2025 vorhanden
Sie können ab sofort mit entscheiden wie Sie die einzelnen Räume gestalten.
Das Einzige was Sie noch einbauen dürfen, sind ihre Möbel.
Das Haus wird Schlüsselfertig übergeben. -
Flächen
- Wohnfläche: 150 m²
- Grundstücksfläche: 200 m²
- Nutzfläche: 220 m²
- Zimmer insgesamt: 5
- Schlafzimmer: 2
- Badezimmer: 2
- Separate WCs: 1
- Etagen: 2
- Stellplatzart: Freiplatz
- Außenstellplätze: 1
- Terrassen: 1
Zustand & Erschließung
- Baujahr: 2025
- Zustand: Erstbezug
- Keller: teilweise unterkellert
Sonstiges
Großenhain, früher als Hayn bezeichnet, ist eine Große Kreisstadt
in Sachsen an der Großen Röder im Landkreis Meißen.- Immobilie ist verfügbar ab: 30.06.2025
- Haustiere erlaubt: ja
-
-Badewanne und Dusche auf 2 Ebenen (EG und OG)
-großer Dachboden zum Einlagern
-historischer Gewölbekeller
-Sonnenterrasse mit gepflasterter Grillecke und viel Platz für ihre Kreative Ader
-Kaminofen im heimischen Wohnzimmer im EG und EG.
-Gastherme und Heizkörper Neu (2024)
– alle Kunststofffenster Neu (dreifach verglast)
-hochwertige, pflegeleichte Vinylböden in allen Räumlichkeiten
-Keramik im Nassbereich
-Fassade neu angestrichen
-Ihre Wünsche werden gern mit berücksichtigt
-cat 6 Netzwerkkabel
-Glasfaseranschluss
–
- Heizungsart: Zentralheizung
- Befeuerung: Gas
-
- Primärenergieträger: Gas
- Energieausweis-Gebäudeart: Wohngebäude
Energieausweis nicht verfügbar/erforderlich oder in Vorbereitung050100150200250300350≥400 -
- Distanz zur Autobahn: 20,0 km
- Distanz zum Kindergarten: 2,0 km
- Distanz zur Grundschule: 2,0 km
- Distanz zur Realschule: 2,0 km
- Distanz zum Gymnasium: 2,0 km
-
- Kaufpreis: 345.000 €
Dein Ansprechpartner bei uns
































