Stilvolles Schwedenhaus mit Einliegerwohnung in energieeffizienter Bauweise
-
Dieses charmante Einfamilienhaus im beliebten Schwedenhaus-Stil vereint skandinavische Architektur mit moderner Energieeffizienz. Das im Jahr 2004 errichtete Niedrigenergiehaus überzeugt durch seine hochwertige Bauweise, durchdachte Raumaufteilung sowie vielseitige Nutzungsmöglichkeiten – ideal für Familien, Mehrgenerationenwohnen oder zur teilweisen Vermietung.
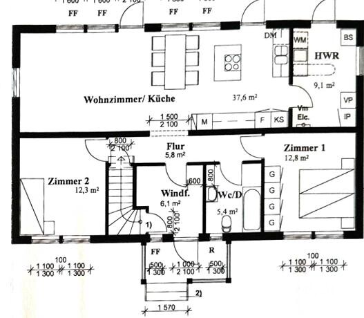
Auf ca. 154 m² Wohnfläche bietet das Haus großzügigen Wohnkomfort. Zusätzlich stehen im vollständig unterkellerten Bereich zwei beheizte Räume zur Verfügung, die sich hervorragend als Gästezimmer, Homeoffice oder Hobbyräume eignen (nicht in der Wohnfläche enthalten).
Das 796 m² große Grundstück ist liebevoll angelegt und bietet mit Terrasse, Sonnenbalkon sowie Garten ausreichend Platz zum Entspannen und Genießen. -
Flächen
- Wohnfläche: 155 m²
- Grundstücksfläche: 796 m²
- Nutzfläche: 200 m²
- Kellerfläche: 90 m²
- Zimmer insgesamt: 5
- Schlafzimmer: 2
- Badezimmer: 2
- Etagen: 2
- Einliegerwohnung: ja
- Garagenstellplätze: 1
- Balkone: 1
- Terrassen: 1
Zustand & Erschließung
- Baujahr: 2004
- Zustand: gepflegt
- Keller: voll unterkellert
Sonstiges
Ein gepflegtes, energieeffizientes Zuhause im zeitlosen Schwedenhaus-Stil mit viel Platz für Familie, Arbeit und Gäste. Die Kombination aus durchdachter Architektur, moderner Technik und großzügigem Grundstück macht dieses Objekt zu einer attraktiven und nachhaltigen Investition in Ihre Zukunft. -
Baujahr: 2004
Bauweise: Schwedenhaus / Niedrigenergiehaus
Wohnfläche: ca. 154 m²
Grundstück: ca. 796 m²
Einbauküche mit Elektrogeräten inklusive
Voll unterkellert
Einliegerwohnung mit eigener Küche und Bad
2 Badezimmer
2 Küchen
Terrasse
Sonnenbalkon
Garage
Mehrere Stellplätze auf dem Grundstück
Angelegter GartenEnergie & Technik:
Gaszentralheizung (erneuert 2020)
Gedämmtes Dach
Gedämmte Fassade
Holzfenster mit 3-fach-Verglasung
ZentralstaubsaugersystemWohnkomfort:
Helle, freundliche Räume
Großzügiger Wohn- und Essbereich
Zwei voll ausgestattete Küchen
Zwei moderne Badezimmer
Einliegerwohnung ideal für Vermietung oder Familienangehörige
Beheizte Kellerräume mit vielseitiger NutzungAußenbereich
Das Grundstück ist gepflegt und harmonisch gestaltet. Die Terrasse lädt zu gemütlichen Grillabenden ein, während der Sonnenbalkon zusätzlichen Freiraum bietet. Der Garten ist angelegt und bietet Platz für Spiel, Erholung oder gärtnerische Gestaltungsideen.
Garage und zusätzliche Stellplätze sorgen für komfortables Parken direkt auf dem eigenen Grundstück.
Besonderheiten:
Energieeffiziente Bauweise
Flexible Nutzungsmöglichkeiten durch Einliegerwohnung
Zusätzliche beheizte Räume im Keller
Ruhiges, familienfreundliches Wohnumfeld
Sofort nutzbar ohne größeren Modernisierungsbedarf- Heizungsart: Zentralheizung
- Befeuerung: Gas
-
- Primärenergieträger: Gas
- Energieausweis-Gebäudeart: Wohngebäude
Energieausweis nicht verfügbar/erforderlich oder in Vorbereitung050100150200250300350≥400 -
Die Lage ist geprägt von einer lockeren Einfamilienhausbebauung, gepflegten Grundstücken und einer naturnahen Umgebung. Durch die erhöhte bzw. leicht ruhige Wohnlage am „Lindenberg“ genießen Sie ein angenehmes Wohnumfeld mit wenig Durchgangsverkehr – ideal für Familien, Ruhesuchende oder alle, die entspannter wohnen möchten.
Im näheren Umfeld befinden sich Kindertagesstätten, Schulen sowie Einkaufsmöglichkeiten für den täglichen Bedarf. Weitere Versorgungs- und Einkaufseinrichtungen sind in den umliegenden Ortschaften und Städten schnell erreichbar.
Die Region bietet eine gute Verkehrsanbindung an die umliegenden Zentren im Landkreis Bautzen sowie Richtung Kamenz und Dresden. Gleichzeitig profitieren Sie von der direkten Nähe zur Natur: Wiesen, Felder und Waldgebiete laden zu Spaziergängen, Radtouren und vielfältigen Freizeitaktivitäten ein.
Fazit: Eine attraktive Wohnlage mit ländlichem Charme, guter Erreichbarkeit und hoher Lebensqualität.
- Distanz zur Autobahn: 15,0 km
- Distanz zum Kindergarten: 5,0 km
- Distanz zur Grundschule: 5,0 km
- Distanz zur Realschule: 5,0 km
- Distanz zum Gymnasium: 10,0 km
- Distanz zum Zentrum: 10,0 km
-
- Kaufpreis: 260.000 €
- Käuferprovision: Käuferprovision 3,57% (inkl.MwSt.) des beurkundeten Kaufpreises.
Dein Ansprechpartner bei uns





















