Zeitzeugnis mit Seele - historisches Anwesen auf weitläufigem Grund in Geising
-
Dieses außergewöhnliche Anwesen in Geising vereint historischen Charme mit solider Bausubstanz und großzügigen Platzverhältnissen. Ursprünglich im Jahr 1843 errichtet, erzählt das Haus eine lange Geschichte und begeistert heute mit seinem unverwechselbaren Charakter sowie zahlreichen liebevollen Details.
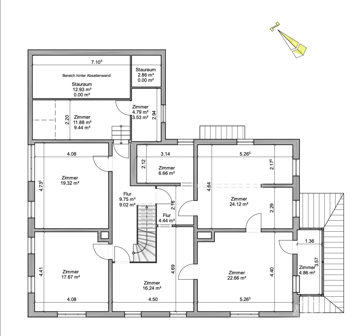
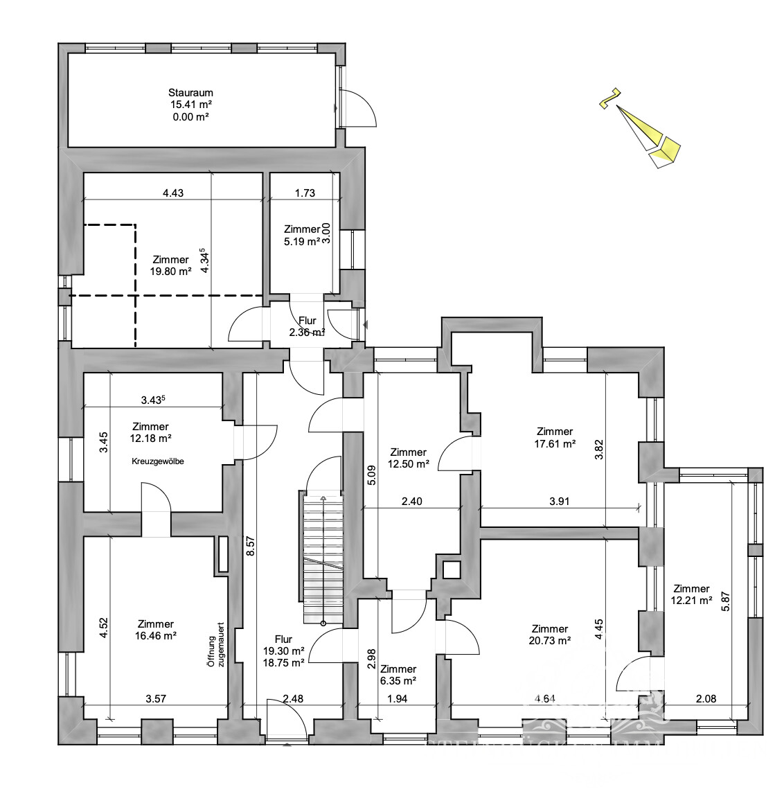
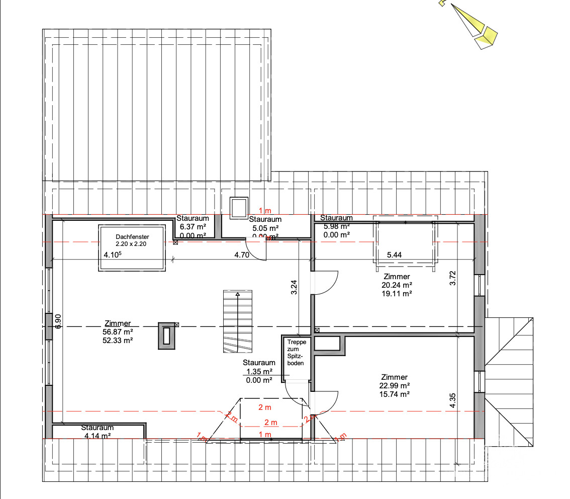
Auf einer Wohnfläche von ca. 254 m² und einer Nutzfläche von rund 369 m² erstreckt sich das Gebäude über drei Etagen und bietet mit insgesamt 12 Zimmern vielfältige Nutzungsmöglichkeiten – sei es als großzügiges Einfamilienhaus, Mehrgenerationenwohnen oder zur Kombination von Wohnen und Arbeiten unter einem Dach. Zwei Badezimmer sowie vier separate WCs sorgen dabei für hohen Komfort auch bei größerem Platzbedarf.
Das ca. 1.937 m² große Grundstück unterstreicht die Großzügigkeit des Anwesens und bietet viel Raum für Erholung, Gartenliebhaber oder individuelle Gestaltungsideen. Ein besonderes Highlight ist der Wintergarten, der sowohl vom Erdgeschoss als auch vom ersten Obergeschoss aus zugänglich ist und zu jeder Jahreszeit einen lichtdurchfluteten Rückzugsort mit Blick ins Grüne schafft.
Auch technisch wurde das Haus über die Jahre hinweg gepflegt und modernisiert: Die Gasthermen stammen aus den Jahren 2001 und 2009, während ein Teil der Elektrik im Jahr 2000 erneuert wurde. Bereits 1995 erhielt das Gebäude eine Außendämmung, und im Jahr 1997 wurden die Fenster teilweise von klassischen Holz-Doppelfenstern auf doppelt verglaste Kunststofffenster umgestellt. Das Dach, stilvoll mit Schiefer gedeckt, wurde 1990 erneuert und fügt sich harmonisch in den historischen Gesamteindruck ein.
Dieses Haus ist eine seltene Gelegenheit für Liebhaber historischer Immobilien, die Wert auf Charme, Großzügigkeit und Entwicklungspotenzial legen. -
Flächen
- Wohnfläche: 254 m²
- Grundstücksfläche: 1.937 m²
- Nutzfläche: 369 m²
- Zimmer insgesamt: 12
- Schlafzimmer: 4
- Badezimmer: 2
- Separate WCs: 4
- Etagen: 3
- Außenstellplätze: 1
- Garagenstellplätze: 1
Zustand & Erschließung
- Baujahr: 1843
- Zustand: renovierungsbedürftig
- Keller: teilweise unterkellert
Sonstiges
Unser Service für Sie als Eigentümer: Wir bewerten gern kostenfrei Ihre Immobilie entsprechend dem aktuellen Marktwert, entwickeln eine Ihrem Objekt angepasste Verkaufsstrategie und stehen Ihnen bis zum erfolgreichen Verkauf zur Verfügung, wir freuen uns, Sie kennenzulernen.
Wir weisen darauf hin, dass die von uns weitergegebenen Objektinformationen, Unterlagen, Pläne etc. vom Veräußerer bzw. Vermieter stammen. Eine Haftung für die Richtigkeit oder Vollständigkeit der Angaben übernehmen wir daher nicht. Es obliegt daher unseren Kunden, die darin enthaltenen Objektinformationen und Angaben auf ihre Richtigkeit hin zu überprüfen.
Wir bitten Sie um Verständnis, dass wir die vollständigen Angaben zur Immobilie nur übermitteln können, wenn uns alle Kontaktdaten des Interessenten (Wohnanschrift, Telefon, …) vorliegen. -
- Befeuerung: Gas
-
- Energieausweis-Art: Bedarf
- Energieausweis gültig bis: 25.03.2036
- Endenergiebedarf: 246,10 kWh/(m²*a)
- Primärenergieträger: Gas
- Energieeffizienzklasse: G
- Baujahr (Energieausweis): 2001
- Energieausweis-Jahrgang: ab Mai 2014
- Energieausweis-Gebäudeart: Wohngebäude
Endenergiebedarf dieses Gebäudes246,10 kWh/(m²·a)0255075100125150175200225>250 -
Das Haus befindet sich in ruhiger und zugleich zentraler Lage im idyllischen Ort Geising, einem Ortsteil der Stadt Altenberg im Osterzgebirge. Die Umgebung ist geprägt von einer charmanten Mischung aus gepflegten Wohnhäusern, viel Grün und einer naturnahen Atmosphäre, die zum Entspannen und Durchatmen einlädt.
Einkaufsmöglichkeiten für den täglichen Bedarf, kleinere Geschäfte sowie gastronomische Angebote sind bequem erreichbar. Auch Einrichtungen wie Schule, Kindergarten und medizinische Versorgung befinden sich in der näheren Umgebung.
Die Lage bietet zudem einen idealen Ausgangspunkt für Freizeit- und Naturaktivitäten. Wander- und Radwege beginnen praktisch vor der Haustür, und im Winter locken zahlreiche Wintersportmöglichkeiten in der Region. Durch die gute Anbindung an die umliegenden Städte sowie die Nähe zur tschechischen Grenze ist sowohl Mobilität als auch Abwechslung garantiert.
Insgesamt vereint diese Lage ruhiges Wohnen im Grünen mit einer guten Infrastruktur und vielfältigen Freizeitmöglichkeiten. -
- Kaufpreis: 205.000 €
- Käuferprovision: Käuferprovision 3,57% (inkl. MwSt.) des beurkundeten Kaufpreises
Dein Ansprechpartner bei uns
































